แบบบ้านชั้นเดียว 3 ห้องนอน พร้อมที่จอดรถ แบบบ้าน P-2647

แบบบ้าน P-2647 แบบบ้านชั้นเดียว 3 ห้องนอน พร้อมที่จอดรถ

แบบบ้านชั้นเดียว 3 ห้องนอน หลังคาทรงปั้นหยา พื้นที่ใช้สอยลงตัวพร้อมพื้นที่จอดรถ เหมาะกับครอบครัวขนาดกลาง 3-5 คน สนใจเขียนแบบบ้าน คลิ๊ก!! ” รับเขียนแบบบ้าน

P-2647-แบบบ้านชั้นเดียว 3 ห้องนอน

สารบัญ

P-2647-แบบบ้านชั้นเดียว 3 ห้องนอน

 

      รายละเอียดบ้าน

  • Type : บ้านสไตล์ปั้นหยา
  • พื้นที่ : 133.74 ตรม.
  • พื้นคอนกรีตรอบตัวบ้านและมีทางลาดสำหรับที่จอดรถ
  • ระเบียงหน้าบ้านกว้าง ใช้นั่งพักผ่อนหรือรับแขก

P-2647-แบบบ้านชั้นเดียว 3 ห้องนอน

    • Roof : ซีแพคโมเนีย
    • หลังคาทรงจั่ว ช่วยลดความร้อนสะสมใต้หลังคา เหมาะกับสภาพอากาศประเทศไทย
    • ภายนอกบ้านเน้นโทนสีอ่อนเพิ่มลูกเล่นด้วยระแนงไม้และกรอบหน้าต่างโค้งมน ช่วยเพิ่มกับตัวบ้านมากขึ้น

P-2647-แบบบ้านชั้นเดียว 3 ห้องนอน

 

     
ปุ่มดูแบบบ้านเพิ่มเติม ปุ่มติดต่อทำแบบบ้าน

P-2647-แบบบ้านชั้นเดียว 3 ห้องนอน

P-2647-แบบบ้านชั้นเดียว 3 ห้องนอน

  • บ้านหลังนี้เหมาะกับครอบครัวขนาดกลาง 3-5 คน
  • Decrorate : คิ้วบัวเบา |ระแนงไม้เทียม | อิฐบล็อคช่องลม

   จุดเด่นของ บ้านสไตล์ปั้นหยา  P-2647

  • ที่จอดรถ 1 คัน
  • ห้องนอน master bedroom มีห้องน้ำแบบส่วนตัว

P-2647-แบบบ้านชั้นเดียว 3 ห้องนอน

P-2647-แบบบ้านชั้นเดียว 3 ห้องนอน

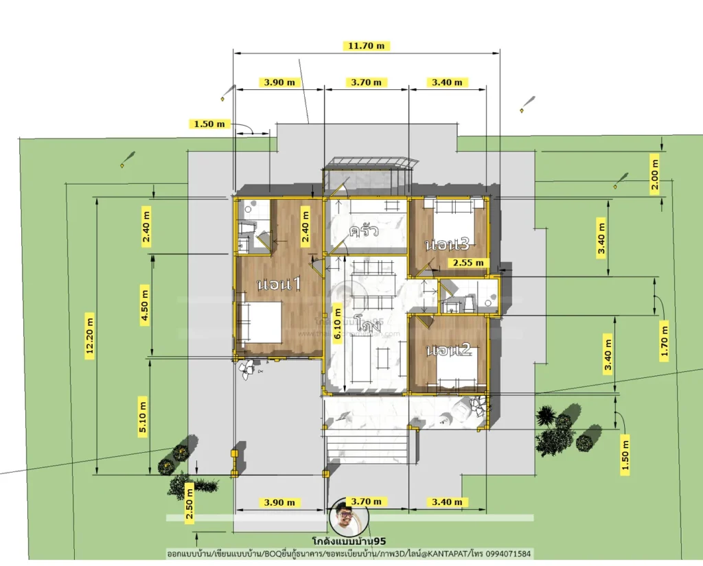
  • ฟังก์ชั่นการใช้งาน : 3 ห้องนอน | 2 ห้องน้ำ | ห้องโถง |  ห้องครัว     

Home details

  • Area : 133.74 ตรม.
  • Roof : ซีแพคโมเนีย
  • Floor  : กระเบื้องยาง SPC ลายไม้ | กระเบื้องแกรนิโต้
  • Decrorate :  คิ้วบัวเบา |ระแนงไม้เทียม | อิฐบล็อคช่องลม

 

รวมบริการเขียนแบบบ้าน ออกแบบบ้าน ทำภาพ3มิติ Perspective (Render),คอนเซปต์(Concept 3D),รีโนเวท,ออกแบบภายใน บริการเกี่ยวกับบ้าน และรวมผลงานออกแบบบ้านสวย ๆ แบบบ้านยอดฮิต แบบบ้านยอดนิยม บ้านสวยสมัยใหม่ บ้านทรงกล่องและบ้านสวยหลากหลายสไตล์แบ่งชมฟรี ที่นี่ thailandhomeplan

Scroll to Top